Zandvoort
Burgemeester van Alphenstraat 57-F 15
Omschrijving
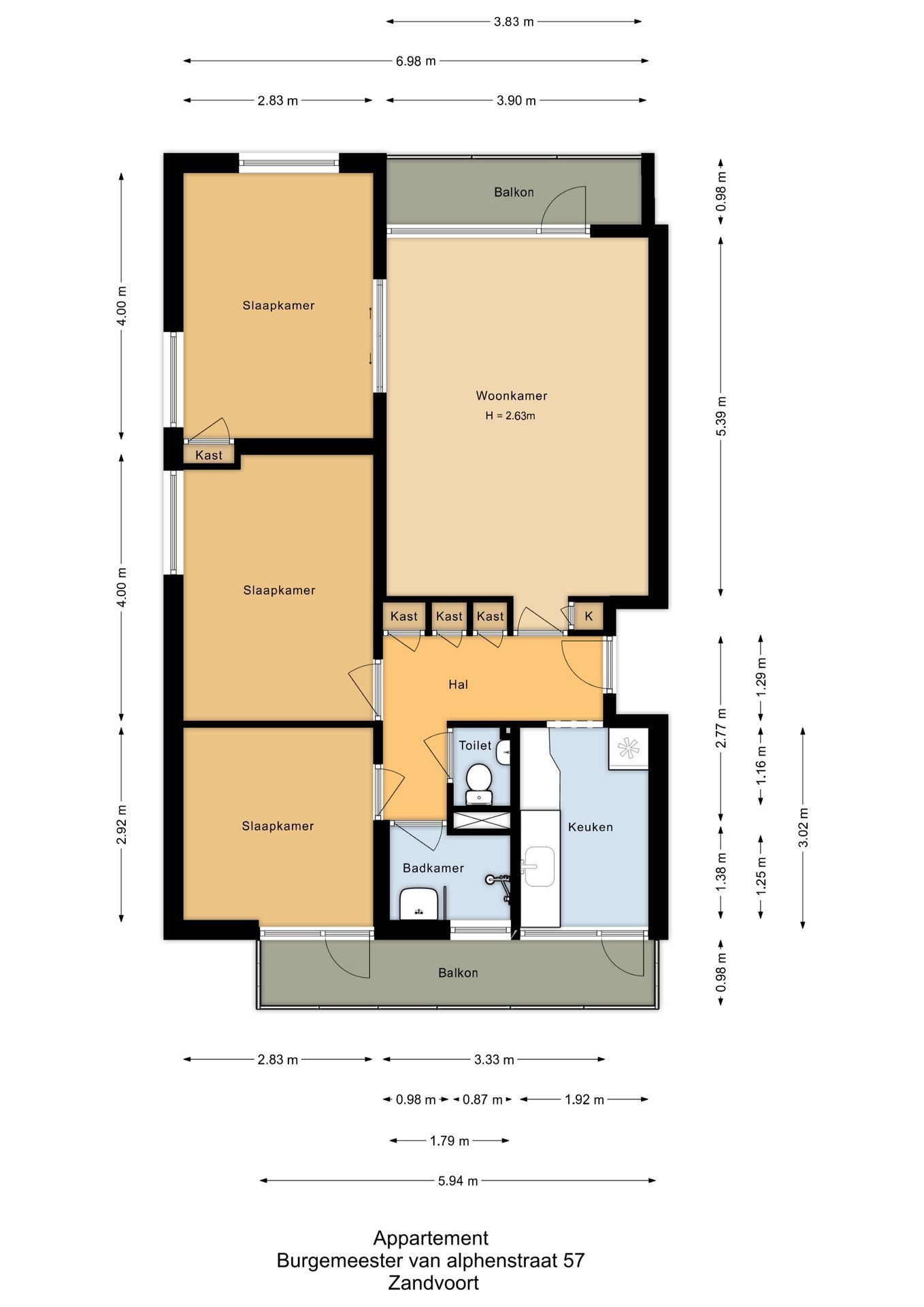
Ruim 4 kamer HOEKappartement verbouwd naar 3 kamers met vrij uitzicht en 2 balkons! Ben je al tijden zoekende naar een appartement die je helemaal naar eigen smaak kan opknappen dan is dit jouw kans!
Het is een lekker ruim appartement op de hoek van de 5e etage gelegen met een balkon aan zeezijde en een 2e balkon aan landzijde. De L-vormige woonkamer (voorheen 2 kamers) heeft een hoekraam en aan de voorzijde vrij uitzicht over het circuit en de achterliggende duinen. De nette dichte keuken en de 1e slaapkamer hebben toegang tot het 2e balkon met zeezicht en uitzicht over het...
Kenmerken
Aanvaarding
- Status
- Verkocht
- Vraagprijs
- € 365.000 k.k.
- Aanvaarding
- In overleg
- Adres
- Burgemeester van Alphenstraat 57-F 15
- Postcode
- 2041 KD
Bouw
- Hoofdtype
- Portiekflat
- Bouwtype
- Bestaand
- Onderhoud Binnen
- Redelijk
- Onderhoud Buiten
- Redelijk goed
Energie
- Energielabel
- E
- Isolatie
- Dubbel glas
- Verwarming
- Blokverwarming
- Water
- Centrale voorziening
Indeling
- Kamers
- 3 kamers
- Slaapkamers
- 2 slaapkamers
- Badkamers
- 1 badkamer
- Verdiepingen
- 1 verdieping
- Voorzieningen
- Lift, Natuurlijke ventilatie
Oppervlakte en inhoud
- Woonoppervlakte
- 73 m²
- Inhoud
- 243 m³
Schuur
- Schuurtjessystemen
- Inpandig
- Aantal Schuren
- 1
Parkeerplaats
- Parkeertypes
- Parkeervergunningen, Op eigen terrein
Plattegronden
Video
Geïnteresseerd in Burgemeester van Alphenstraat 57-F 15?
Maak dan snel een afspraak voor een vrijblijvende bezichtiging

Zandvoort
Burgemeester van Alphenstraat 57-F 15
Verkocht



3 kamers
73 m²
243 m³
Portiekflat
€ 365.000 k.k.
Burgemeester van Alphenstraat 57-F 15
bezichtigen?