Zandvoort
Constantijn Huygensstraat 26
Omschrijving
Gerenoveerde, sfeervolle eengezinswoning met trendy en stijlvolle details. In een kindvriendelijke buurt ligt deze gerenoveerde eengezinswoning, ontworpen met oog voor moderne en stijlvolle details. De woning kenmerkt zich door een warme uitstraling en een praktische indeling, verrijkt met speels aangebrachte doorkijkjes die zorgen voor extra licht en een ruimtelijk gevoel. Bovendien bevindt de woning zich op korte afstand van alle voorzieningen zoals scholen en een supermarkt. Dorp, strand, Center Parcs, duinen en trein bereikbaar in ca. 10 minuten.
Kenmerkend voor de woning is het consequente gebruik van warme houten elementen, die door het gehele huis terugkomen en zorgen voor eenheid en karakter.
Entree...
Kenmerken
Aanvaarding
- Status
- Beschikbaar
- Vraagprijs
- € 625.000 k.k.
- Aanvaarding
- In overleg
- Adres
- Constantijn Huygensstraat 26
- Postcode
- 2041 NM
Bouw
- Hoofdtype
- Eengezinswoning
- Bouwtype
- Bestaand
- Onderhoud Binnen
- Goed
- Onderhoud Buiten
- Goed
Energie
- Energielabel
- C
- Isolatie
- Muurisolatie, Gedeeltelijk dubbel glas, Grotendeels dubbelglas
- Verwarming
- Cv ketel, Vloerverwarming gedeeltelijk, Houtkachel
- Water
- Cv ketel
- Ketelmerk
- HR-107 ketel (Eigendom)
Indeling
- Kamers
- 4 kamers
- Slaapkamers
- 3 slaapkamers
- Badkamers
- 2 badkamers
- Verdiepingen
- 3 verdiepingen
- Voorzieningen
- Tv kabel, Rookkanaal, Natuurlijke ventilatie
Oppervlakte en inhoud
- Woonoppervlakte
- 114 m²
- Perceeloppervlakte
- 83 m²
- Inhoud
- 411 m³
Buitenruimte
- Tuintypes
- Patio atrium
- Hoofdtuin Type
- Patio atrium
- Oppervlakte Hoofdtuin
- 14 m² (433 cm x 322 cm)
- Oriëntatie Hoofdtuin
- Zuidoost
Parkeerplaats
- Parkeertypes
- Betaald parkeren, Parkeervergunningen
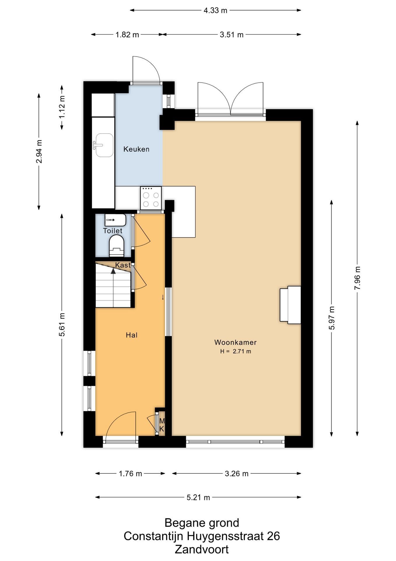
Plattegronden
Video
Geïnteresseerd in Constantijn Huygensstraat 26?
Maak dan snel een afspraak voor een vrijblijvende bezichtiging

Locatie
Zandvoort
Constantijn Huygensstraat 26



4 kamers
114 m²
83 m²
Eengezinswoning
€ 625.000 k.k.
Constantijn Huygensstraat 26
bezichtigen?