Zandvoort
de Favaugeplein 21-F 62
Omschrijving
Super leuk appartement (studio) op de 11e verdieping met balkon op het zuidwesten waar u een waanzinnig mooi uitzicht heeft over zee, het dorp en de achterliggende duinen. Vanuit je bed kijk je heerlijk uit over de zee, wie wil nou niet zo wakker worden? De studio is van alle gemakken voorzien. Ook de muurschildering van Hans en Puck Kemmink is uniek.
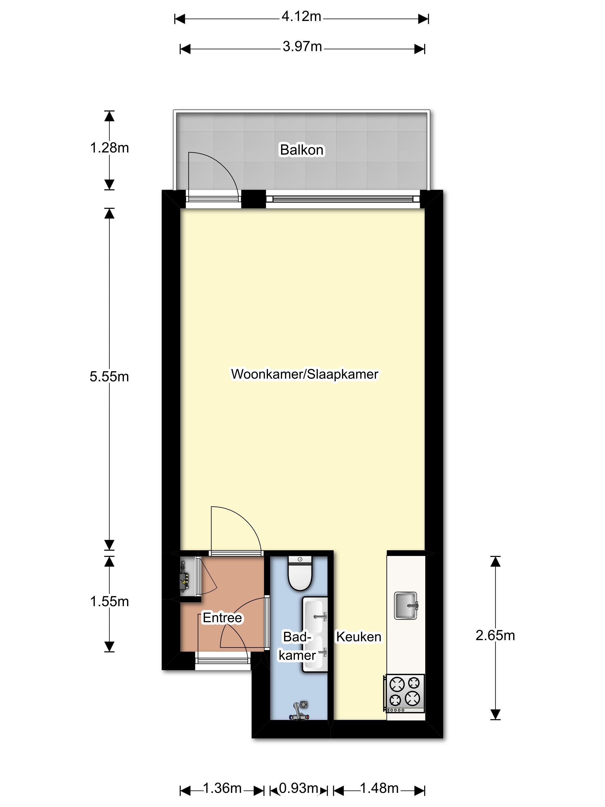
INDELING: Begane grond: centrale entree met bellentableau en brievenbussen. Afgesloten deur met toegang tot de bergingen, gezamenlijke fietsenberging, trappenhuis en de liften.
11e verdieping: hal met toegang tot de moderne compacte badkamer. Deze is voorzien van een toilet, douchegelegenheid en wastafel. Deur...
Kenmerken
Aanvaarding
- Status
- Verkocht onder voorbehoud
- Vraagprijs
- € 225.000 k.k.
- Aanvaarding
- In overleg
- Adres
- de Favaugeplein 21-F 62
- Postcode
- 2042 TN
Bouw
- Hoofdtype
- Portiekflat
- Bouwtype
- Bestaand
- Onderhoud Binnen
- Goed
- Onderhoud Buiten
- Redelijk
Energie
- Energielabel
- C
- Isolatie
- Gedeeltelijk dubbel glas
- Verwarming
- Blokverwarming
- Water
- Centrale voorziening
Indeling
- Kamers
- 1 kamer
- Slaapkamers
- 1 slaapkamer
- Verdiepingen
- 1 verdieping
- Voorzieningen
- Tv kabel, Lift, Natuurlijke ventilatie
Oppervlakte en inhoud
- Woonoppervlakte
- 31 m²
- Inhoud
- 100 m³
Schuur
- Schuurtjessystemen
- Inpandig
- Voorzieningen in Schuur
- Voorzien van elektra
- Aantal Schuren
- 1
Parkeerplaats
- Parkeertypes
- Betaald parkeren, Parkeervergunningen
Plattegronden
Geïnteresseerd in de Favaugeplein 21-F 62?
Maak dan snel een afspraak voor een vrijblijvende bezichtiging

Locatie
Zandvoort
de Favaugeplein 21-F 62



1 kamer
31 m²
100 m³
Portiekflat
€ 225.000 k.k.
de Favaugeplein 21-F 62
bezichtigen?