Zandvoort
de Ruyterstraat 4-F 2
Omschrijving
Wonen met de Noordzee aan je voeten! De vraagprijs is exclusief de inpandige garage. Altijd al je woonkamer in willen lopen om vervolgens de Noordzee te begroeten? Dan is dit compleet gerenoveerde 3-kamerappartement met balkon, berging én eventueel de garage, precies wat je zoekt. Hier geniet je elke dag van het vrije uitzicht over de boulevard, het strand en de Noordzee – een plek waar wonen voelt als vakantie.
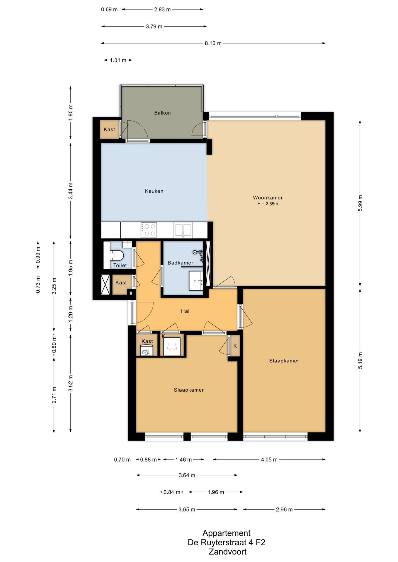
Indeling Via de centrale entree en het trappenhuis bereik je de woning op de eerste verdieping.
- Lichte woonkamer (24 m²) met open verbinding naar de moderne keuken (14 m²), voorzien van inbouwapparatuur.
- Twee...
Kenmerken
Aanvaarding
- Status
- Verkocht
- Vraagprijs
- € 425.000 k.k.
- Aanvaarding
- In overleg
- Adres
- de Ruyterstraat 4-F 2
- Postcode
- 2041 HJ
Bouw
- Hoofdtype
- Portiekflat
- Bouwtype
- Bestaand
- Onderhoud Binnen
- Uitstekend goed
- Onderhoud Buiten
- Uitstekend goed
Energie
- Energielabel
- C
- Isolatie
- Dakisolatie, Muurisolatie, Vloerisolatie, Dubbel glas
- Verwarming
- Cv ketel
- Water
- Cv ketel
- Ketelmerk
- Remeha Tzerra (Eigendom)
- Bouwjaar Ketel
- 2021
Indeling
- Kamers
- 3 kamers
- Slaapkamers
- 2 slaapkamers
- Badkamers
- 1 badkamer
- Verdiepingen
- 1 verdieping
- Voorzieningen
- Mechanische ventilatie, Tv kabel, Glasvezel kabel, Natuurlijke ventilatie
Oppervlakte en inhoud
- Woonoppervlakte
- 81 m²
- Inhoud
- 200 m³
- Overige Oppervlakte
- 1 m²
Parkeerplaats
- Parkeertypes
- Openbaar parkeren, Betaald parkeren, Parkeervergunningen
Garage
- Garagetypes
- Garagebox
- Aantal Garages
- 1
Plattegronden
Video
Geïnteresseerd in de Ruyterstraat 4-F 2?
Maak dan snel een afspraak voor een vrijblijvende bezichtiging

Zandvoort
de Ruyterstraat 4-F 2



3 kamers
81 m²
200 m³
Portiekflat
€ 425.000 k.k.
de Ruyterstraat 4-F 2
bezichtigen?