Zandvoort
Duinweg 23
Omschrijving
** For English translation see below ** Woning met karakter én mogelijkheden: ideaal voor bedrijf aan huis, verhuur én eigen gebruik .
Wat een bijzondere zeer royale woning van maar liefst 198m2 en met een rijke geschiedenis! Deze charmante gemeentelijk monumentale woning uit 1904 biedt veel meer dan alleen karakter en sfeer.
Dankzij de aparte opgang aan de Westerstraat en het volledig ingerichte gastenverblijf met twee verdiepingen, leent deze woning zich bij uitstek voor een kleinschalige praktijkruimte, atelier, kantoor aan huis of bijvoorbeeld een bed & breakfast. Daarnaast is het gastenverblijf zeer geschikt voor tijdelijke verhuur (short stay) of als zelfstandig onderkomen...
Kenmerken
Aanvaarding
- Status
- Beschikbaar
- Vraagprijs
- € 845.000 k.k.
- Aanvaarding
- In overleg
- Adres
- Duinweg 23
- Postcode
- 2042 HB
Bouw
- Hoofdtype
- Eengezinswoning
- Bouwtype
- Bestaand
- Onderhoud Binnen
- Goed
- Onderhoud Buiten
- Redelijk goed
- Isolatie
- Dakisolatie, Dubbel glas
- Verwarming
- Cv ketel
- Water
- Cv ketel
- Ketelmerk
- Vaillant ECO TEC Plus (Eigendom)
- Bouwjaar Ketel
- 2024
Indeling
- Kamers
- 9 kamers
- Slaapkamers
- 5 slaapkamers
- Badkamers
- 3 badkamers
- Verdiepingen
- 3 verdiepingen
- Voorzieningen
- Mechanische ventilatie, Tv kabel, Rookkanaal, Glasvezel kabel, Natuurlijke ventilatie
Oppervlakte en inhoud
- Woonoppervlakte
- 198 m²
- Perceeloppervlakte
- 115 m²
- Inhoud
- 771 m³
- Overige Oppervlakte
- 9 m²
Buitenruimte
- Tuintypes
- Achtertuin
- Hoofdtuin Type
- Achtertuin
- Oppervlakte Hoofdtuin
- 18 m² (300 cm x 600 cm)
- Oriëntatie Hoofdtuin
- Noordoost
Dakterras
- Oppervlakte Dakterras
- ( x )
Parkeerplaats
- Parkeertypes
- Betaald parkeren, Parkeervergunningen
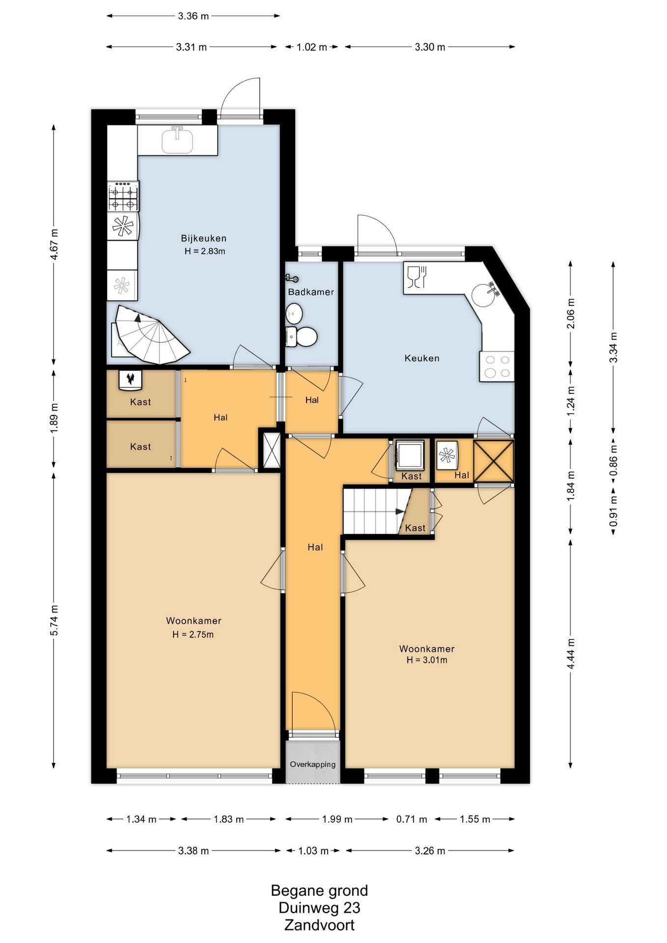
Plattegronden
Video
Geïnteresseerd in Duinweg 23?
Maak dan snel een afspraak voor een vrijblijvende bezichtiging

Locatie
Zandvoort
Duinweg 23



9 kamers
198 m²
115 m²
Eengezinswoning
€ 845.000 k.k.
Duinweg 23
bezichtigen?