Zandvoort
Gasthuisplein 7
Omschrijving
Prachtige woning met historie in het hart van Zandvoort, met royaal bijgebouw en een maar liefst 12 meter diepe garage. In het bruisende centrum van Zandvoort, op een unieke en karakteristieke locatie, staat deze charmante woning uit 1900. Een echte parel voor liefhebbers van historie, sfeer en authentieke details. De woning beschikt over een verrassende indeling, een binnentuin, een multifunctioneel bijgebouw én een uitzonderlijk diepe garage van circa 12 meter, een zeldzaamheid midden in het centrum.
Met het levendige Gasthuisplein direct tegenover de woning, geniet je hier van levend uitzicht en een gezellige sfeer, terwijl je binnenshuis juist rust en privacy ervaart....
Kenmerken
Aanvaarding
- Status
- Beschikbaar
- Vraagprijs
- € 500.000 k.k.
- Aanvaarding
- In overleg
- Adres
- Gasthuisplein 7
- Postcode
- 2042 JM
Bouw
- Hoofdtype
- Eengezinswoning
- Bouwtype
- Bestaand
- Onderhoud Binnen
- Redelijk
- Onderhoud Buiten
- Redelijk
Energie
- Energielabel
- F
- Isolatie
- Gedeeltelijk dubbel glas, Voorzetramen
- Verwarming
- Cv ketel
- Water
- Cv ketel
- Ketelmerk
- Remeha (Eigendom)
- Bouwjaar Ketel
- 2019
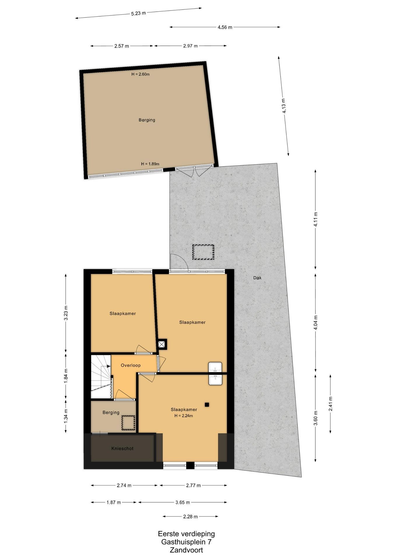
Indeling
- Kamers
- 5 kamers
- Slaapkamers
- 3 slaapkamers
- Verdiepingen
- 2 verdiepingen
- Voorzieningen
- Tv kabel, Natuurlijke ventilatie
Oppervlakte en inhoud
- Woonoppervlakte
- 93 m²
- Perceeloppervlakte
- 121 m²
- Inhoud
- 581 m³
- Overige Oppervlakte
- 72 m²
Buitenruimte
- Tuintypes
- Patio atrium
- Hoofdtuin Type
- Patio atrium
- Oppervlakte Hoofdtuin
- 8 m² (260 cm x 320 cm)
- Oriëntatie Hoofdtuin
- Zuid
Roofterrace
- Oppervlakte Dakterras
- ( x )
Schuur
- Schuurtjessystemen
- Aangebouwd steen
- Aantal Schuren
- 1
Parkeerplaats
- Parkeertypes
- Betaald parkeren, Parkeervergunningen, Op eigen terrein
Garage
- Garagetypes
- Aangebouwd steen
- Aantal Garages
- 1
Plattegronden
Video
Geïnteresseerd in Gasthuisplein 7?
Maak dan snel een afspraak voor een vrijblijvende bezichtiging

Locatie
Zandvoort
Gasthuisplein 7



5 kamers
93 m²
121 m²
Eengezinswoning
€ 500.000 k.k.
Gasthuisplein 7
bezichtigen?