Zandvoort
Schuitengat 45
Omschrijving
Het casco appartement is gelegen op de 3e verdieping. Wanneer je de galerij betreedt ervaar je waarom locatie Residence d' Orange zo geliefd is. De ingrediënten zijn aanwezig om hier je droom appartement te realiseren! Voeg je eigen smaken toe tot een warm thuis met twee of drie slaapkamers. De artist impressies geven wellicht een goede weergave van de mogelijkheden. Het ruime balkon ligt op het zonnige zuidwesten. Zowel balkon als de mogelijke slaapkamers hebben beiden fenomenaal zeezicht. Dit complex, met lift, ligt zeer centraal ten opzichte van het centrum of het NS-station, en het prachtige wandelgebied de Amsterdamse Waterleidingduinen. Zien...
Kenmerken
Aanvaarding
- Status
- Beschikbaar
- Vraagprijs
- € 350.000 k.k.
- Aanvaarding
- In overleg
- Adres
- Schuitengat 45
- Postcode
- 2042 TK
Bouw
- Hoofdtype
- Galerijflat
- Bouwtype
- Bestaand
- Onderhoud Binnen
- Matig
- Onderhoud Buiten
- Goed
Energie
- Energielabel
- D
- Verwarming
- Blokverwarming
- Water
- Centrale voorziening
Indeling
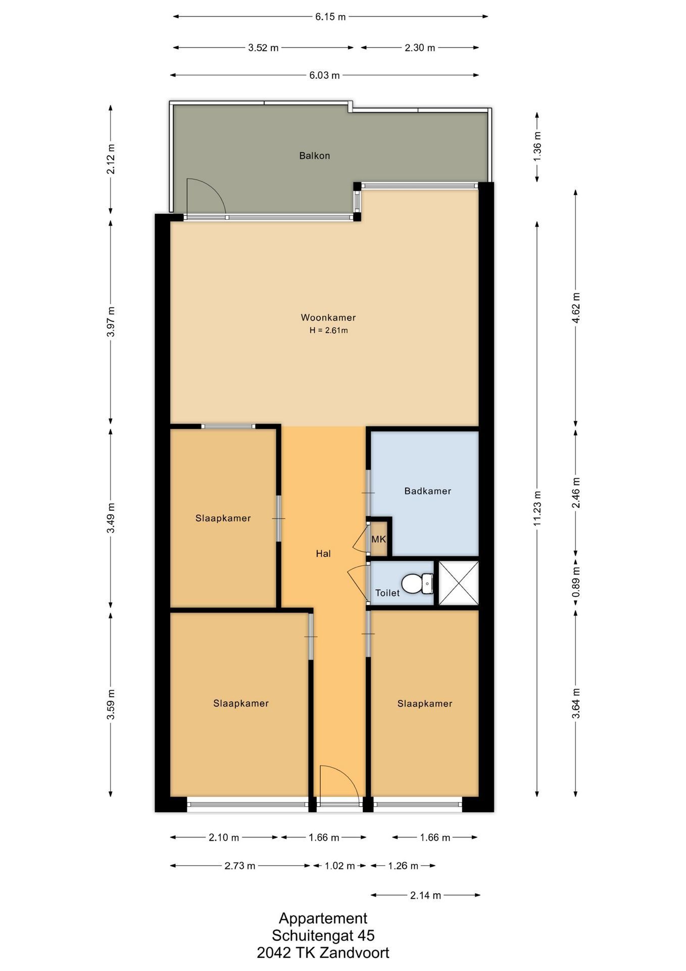
- Kamers
- 3 kamers
- Slaapkamers
- 2 slaapkamers
- Verdiepingen
- 1 verdieping
- Voorzieningen
- Natuurlijke ventilatie
Oppervlakte en inhoud
- Woonoppervlakte
- 68 m²
- Inhoud
- 220 m³
Schuur
- Schuurtjessystemen
- Inpandig
- Voorzieningen in Schuur
- Voorzien van elektra
- Aantal Schuren
- 1
Parkeerplaats
- Parkeertypes
- Betaald parkeren, Parkeervergunningen
Plattegronden
Video
Geïnteresseerd in Schuitengat 45?
Maak dan snel een afspraak voor een vrijblijvende bezichtiging

Locatie
Zandvoort
Schuitengat 45



3 kamers
68 m²
220 m³
Galerijflat
€ 350.000 k.k.
Schuitengat 45
bezichtigen?