Zandvoort
van Galenstraat 16
Omschrijving
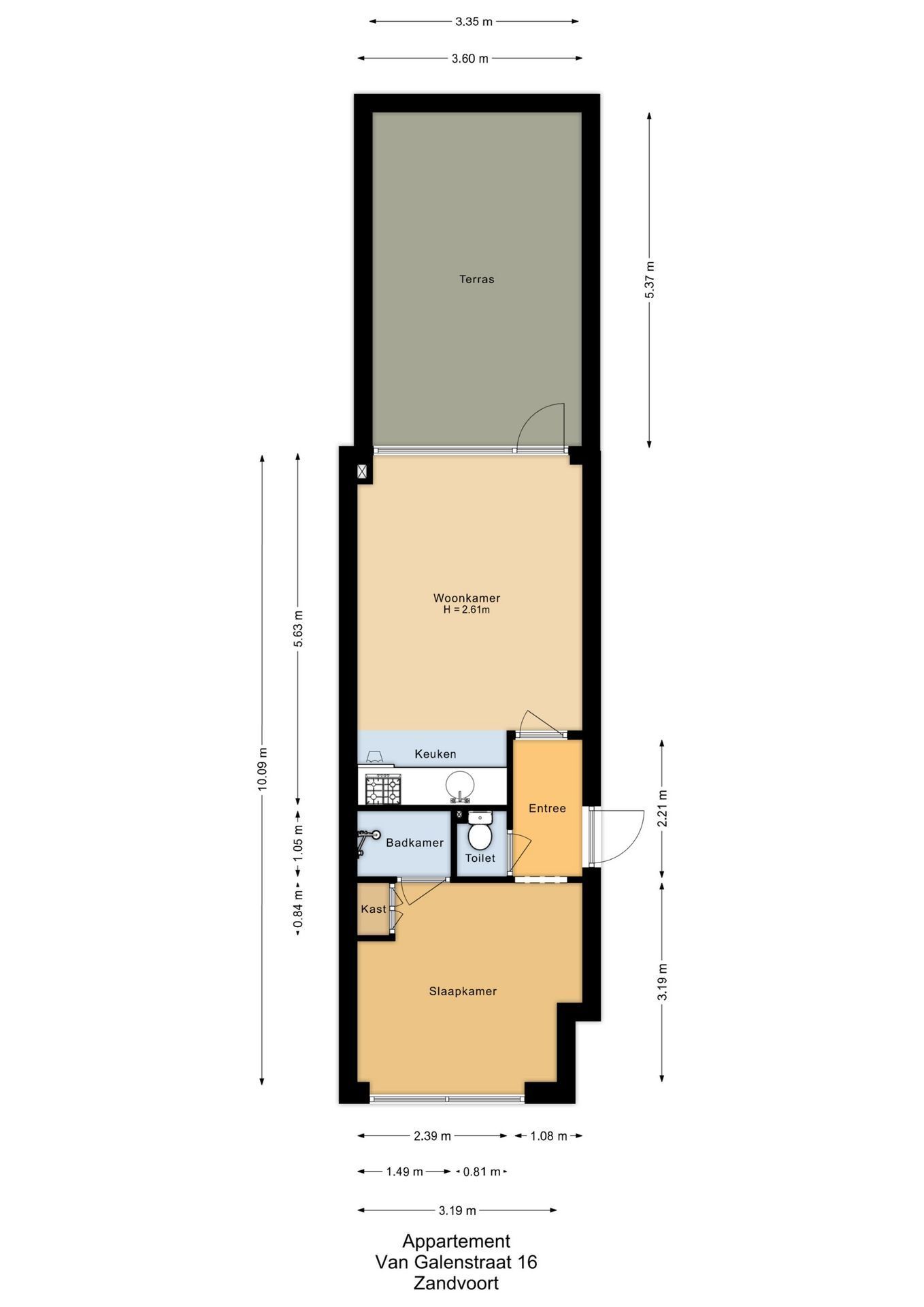
Knus 2 kamer appartement met ruim zonnig terras op het zuidwesten van maar liefst 18m2, op enkele meters van zee én het circuit gelegen. Dit charmante appartement ligt op een unieke locatie: op loopafstand van zowel het strand als het beroemde circuit van Zandvoort. Ideaal voor wie houdt van een bruisende omgeving met stranddagen én evenementen binnen handbereik.
Je bereikt het appartement via een klein trappetje naar de verhoogde galerij. Hier bevindt zich jouw eigen voordeur, zonder centrale entree zoals bij de meeste appartementen. De hal deel je slechts met één directe buur, wat zorgt voor een rustige en persoonlijke woonbeleving. In...
Kenmerken
Aanvaarding
- Status
- Verkocht onder voorbehoud
- Vraagprijs
- € 285.000 k.k.
- Aanvaarding
- In overleg
- Adres
- van Galenstraat 16
- Postcode
- 2041 JR
Bouw
- Hoofdtype
- Portiekflat
- Bouwtype
- Bestaand
- Onderhoud Binnen
- Goed
- Onderhoud Buiten
- Goed
Energie
- Energielabel
- E
- Verwarming
- Blokverwarming
- Water
- Gasboiler eigendom
Indeling
- Kamers
- 2 kamers
- Slaapkamers
- 1 slaapkamer
- Badkamers
- 1 badkamer
- Verdiepingen
- 1 verdieping
- Voorzieningen
- Tv kabel, Natuurlijke ventilatie
Oppervlakte en inhoud
- Woonoppervlakte
- 36 m²
- Inhoud
- 118 m³
Buitenruimte
- Tuintypes
- Zonneterras
- Hoofdtuin Type
- Zonneterras
- Oppervlakte Hoofdtuin
- 18 m² (335 cm x 537 cm)
- Oriëntatie Hoofdtuin
- Zuidwest
Parkeerplaats
- Parkeertypes
- Betaald parkeren, Parkeervergunningen
Plattegronden
Video
Geïnteresseerd in van Galenstraat 16?
Maak dan snel een afspraak voor een vrijblijvende bezichtiging

Locatie
Zandvoort
van Galenstraat 16



2 kamers
36 m²
118 m³
Portiekflat
€ 285.000 k.k.
van Galenstraat 16
bezichtigen?