Zandvoort
van Speijkstraat 10
Omschrijving
VAN SPEIJKSTRAAT 10 – MET DIEPE TUIN EN 2 BALKONS ÉN MET GARAGE !
Woonhuis met behoud van karakter gemoderniseerd en wat zelfs nog meer potentie bezit, zoals een uitbouw, een andere invulling van de grote garage, het kan allemaal maar hoeft niet, een woning kopen die toekomstbestendig is, is altijd een goed idee.
Deze typische jaren '30 gezinswoning met energielabel B heeft een centrale ligging met betrekking tot het treinstation, centrum en ook het strand is op steenworp afstand.
De woning beschikt over een op het westen gesitueerde achtertuin, een diepe tuin met gunstige zonligging en is prachtig aangelegd. Achterom via de...
Kenmerken
Aanvaarding
- Status
- Verkocht
- Vraagprijs
- € 775.000 k.k.
- Aanvaarding
- In overleg
- Adres
- van Speijkstraat 10
- Postcode
- 2041 KL
Bouw
- Hoofdtype
- Eengezinswoning
- Bouwtype
- Bestaand
- Onderhoud Binnen
- Uitstekend goed
- Onderhoud Buiten
- Goed
Energie
- Energielabel
- B
- Isolatie
- Dakisolatie, Muurisolatie, Dubbel glas, Hr glas
- Verwarming
- Cv ketel
- Water
- Cv ketel
- Ketelmerk
- Intergas Kompakt HRE (Eigendom)
- Bouwjaar Ketel
- 2012
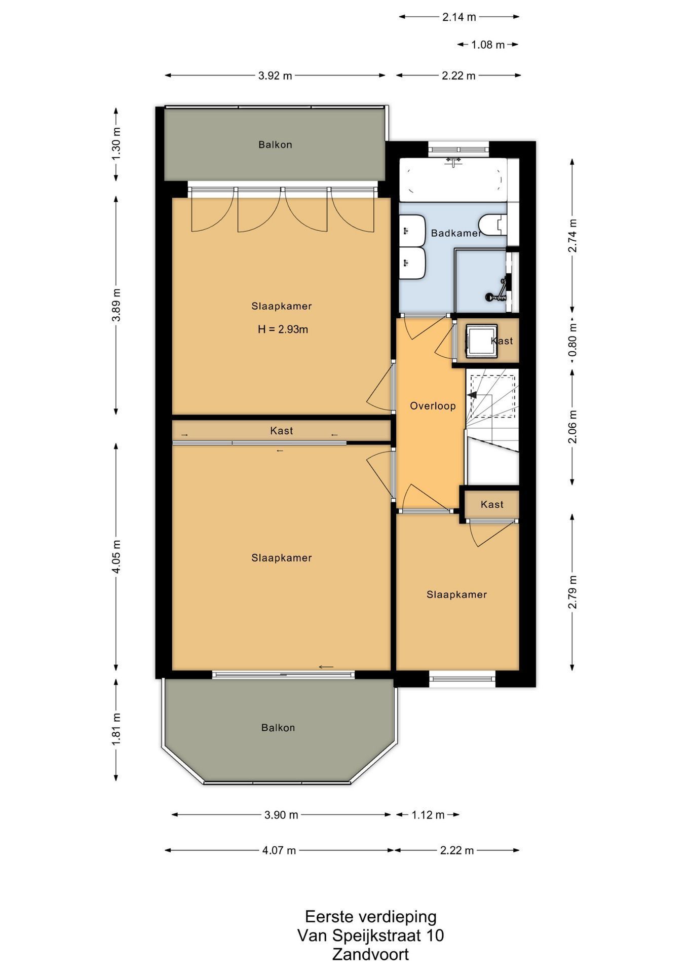
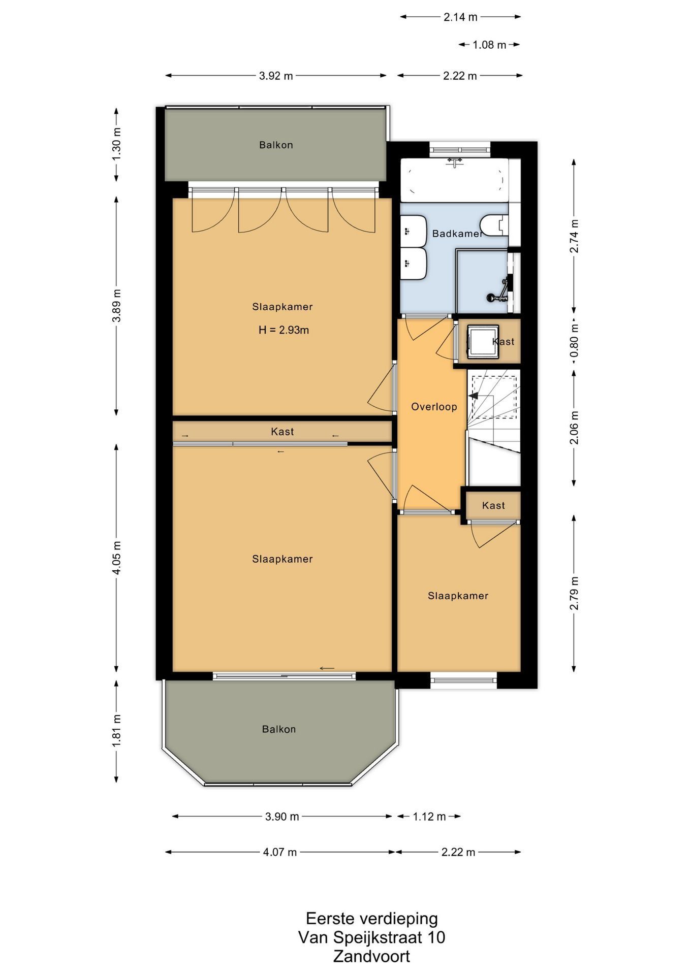
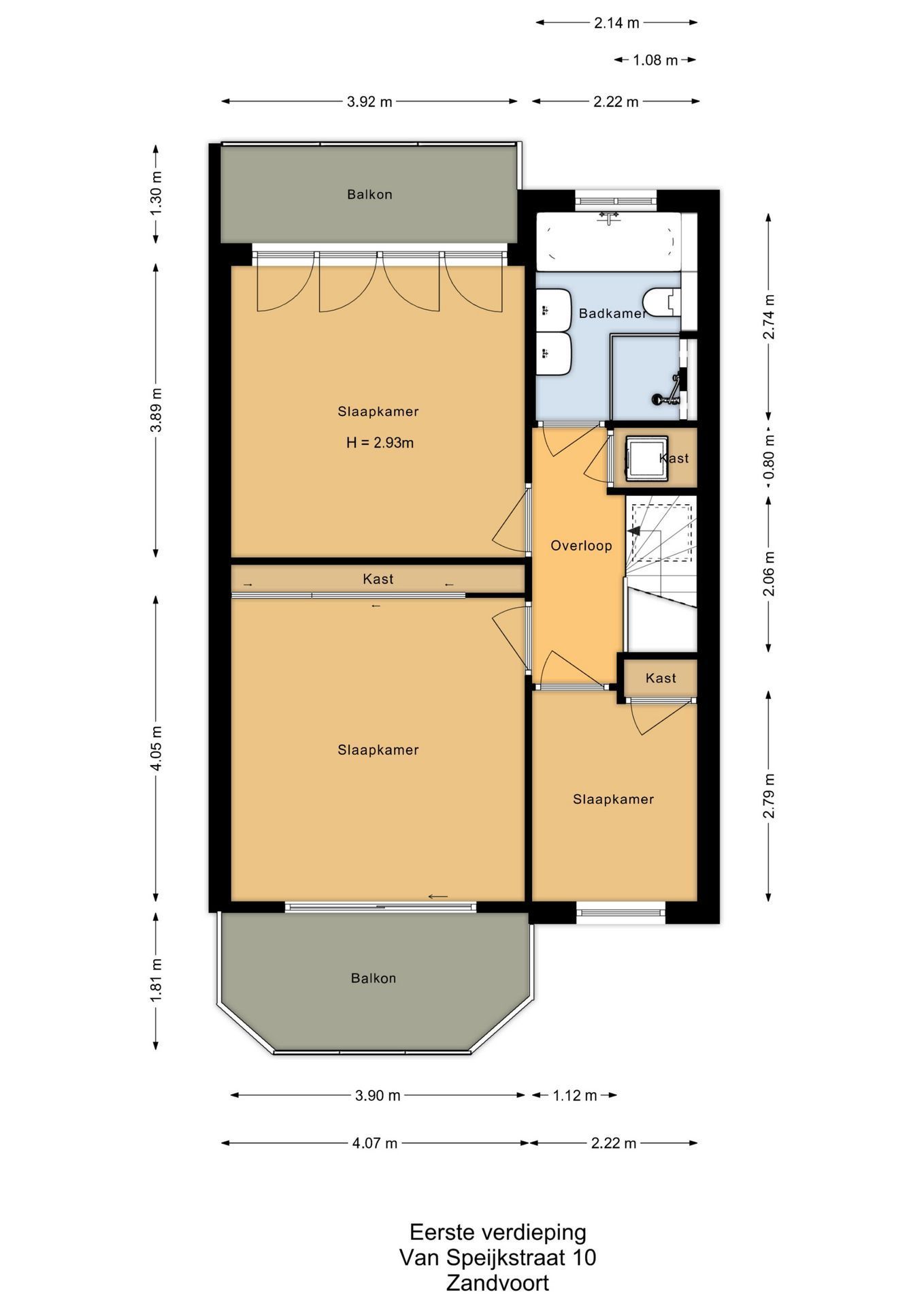
Indeling
- Kamers
- 5 kamers
- Slaapkamers
- 3 slaapkamers
- Badkamers
- 1 badkamer
- Verdiepingen
- 2 verdiepingen
- Voorzieningen
- Mechanische ventilatie, Tv kabel, Buitenzonwering, Zonnecollectoren, Rookkanaal, Glasvezel kabel, Zonnepanelen, Natuurlijke ventilatie
Oppervlakte en inhoud
- Woonoppervlakte
- 114 m²
- Perceeloppervlakte
- 204 m²
- Inhoud
- 471 m³
- Overige Oppervlakte
- 6 m²
Buitenruimte
- Tuintypes
- Achtertuin
- Hoofdtuin Type
- Achtertuin
- Oppervlakte Hoofdtuin
- 85 m² (650 cm x 1.300 cm)
- Oriëntatie Hoofdtuin
- West
Parkeerplaats
- Parkeertypes
- Betaald parkeren, Parkeervergunningen
Garage
- Garagetypes
- Garagebox
- Aantal Garages
- 1
- Isolatie in Garage
- Dubbel glas
- Oppervlakte Hoofdgarage
- 45 m² (600 cm x 750 cm)
Plattegronden
Video
Geïnteresseerd in van Speijkstraat 10?
Maak dan snel een afspraak voor een vrijblijvende bezichtiging

Zandvoort
van Speijkstraat 10



5 kamers
114 m²
204 m²
Eengezinswoning
€ 775.000 k.k.
van Speijkstraat 10
bezichtigen?