Zandvoort
Zandvoortselaan 131
Omschrijving
Tegenover de beschermde duinen staat deze charmante 2 onder 1 kap woning uit de jaren 20 met een oprit voor maar liefst 6 auto's, een sfeervolle aangebouwde veranda aan de achterzijde, een stenen ruime garage en een heerlijke diepe achtertuin. Gelegen aan de geliefde Zandvoortselaan biedt deze goed onderhouden half vrijstaande woning met een woonoppervlakte van ca. 164 m² vrij uitzicht op de duinen aan de voorzijde. De woning is verrassend ruim en karaktervol, beschikt over een zeer diepe achtertuin, tuinkamer en vrijstaande stenen garage, en combineert sfeer, comfort en functionaliteit, verdeeld over meerdere woonlagen. De ligging is ideaal: rustig en...
Kenmerken
Aanvaarding
- Status
- Beschikbaar
- Vraagprijs
- € 950.000 k.k.
- Aanvaarding
- In overleg
- Adres
- Zandvoortselaan 131
- Postcode
- 2042 XJ
Bouw
- Hoofdtype
- Eengezinswoning
- Bouwtype
- Bestaand
- Onderhoud Binnen
- Goed
- Onderhoud Buiten
- Goed
Energie
- Energielabel
- C
- Isolatie
- Dakisolatie, Dubbel glas
- Verwarming
- Cv ketel
- Water
- Cv ketel
- Ketelmerk
- Remeha (Eigendom)
- Bouwjaar Ketel
- 2009
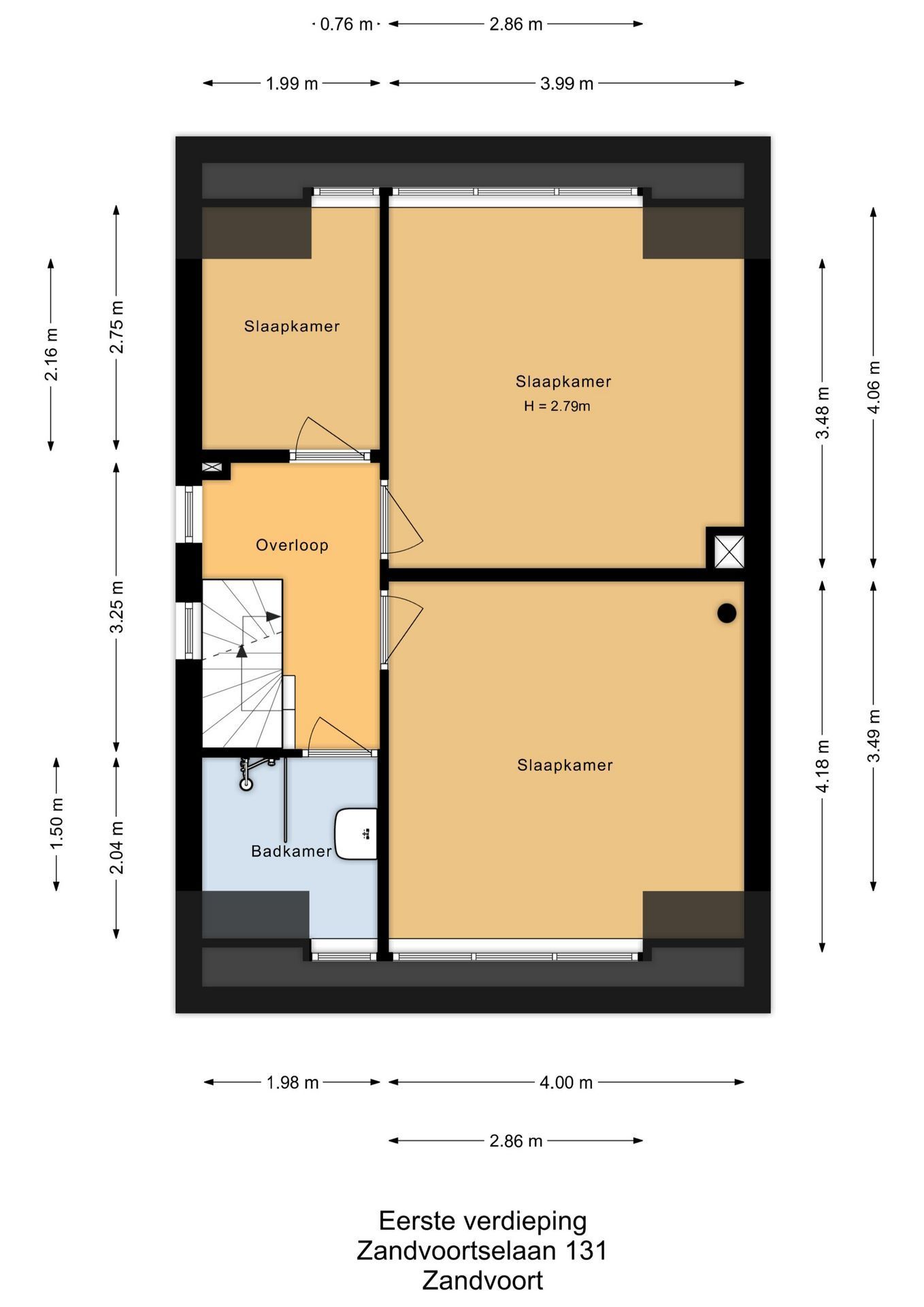
Indeling
- Kamers
- 6 kamers
- Slaapkamers
- 4 slaapkamers
- Badkamers
- 2 badkamers
- Verdiepingen
- 3 verdiepingen
- Voorzieningen
- Alarminstallatie, Rolluiken, Tv kabel, Rookkanaal, Dakraam, Glasvezel kabel, Zonnepanelen, Natuurlijke ventilatie
Oppervlakte en inhoud
- Woonoppervlakte
- 164 m²
- Perceeloppervlakte
- 512 m²
- Inhoud
- 656 m³
- Overige Oppervlakte
- 5 m²
Buitenruimte
- Tuintypes
- Achtertuin, Voortuin
- Hoofdtuin Type
- Achtertuin
- Oppervlakte Hoofdtuin
- 203 m² (725 cm x 2.800 cm)
- Oriëntatie Hoofdtuin
- Noordoost
Schuur
- Schuurtjessystemen
- Vrijstaand steen
- Voorzieningen in Schuur
- Voorzien van elektra, Voorzien van water
- Aantal Schuren
- 1
Parkeerplaats
- Parkeertypes
- Parkeervergunningen, Op eigen terrein
Garage
- Garagetypes
- Vrijstaand steen
- Aantal Garages
- 1
- Oppervlakte Hoofdgarage
- 19 m² (306 cm x 605 cm)
Plattegronden
Video
Geïnteresseerd in Zandvoortselaan 131?
Maak dan snel een afspraak voor een vrijblijvende bezichtiging

Locatie
Zandvoort
Zandvoortselaan 131



6 kamers
164 m²
512 m²
Eengezinswoning
€ 950.000 k.k.
Zandvoortselaan 131
bezichtigen?