Zandvoort
Burgemeester Engelbertsstraat 38
Omschrijving
Wat een royale woning! Op slechts ca. 150 meter van het strand staat deze 'dijkwoning' met een woonoppervlakte van ca. 177m2, achtertuin op het zuidoosten, achterom en een stenen schuur. Er zijn maar liefst 4 volwaardige woonlagen waarvan een deel thans is ingericht voor de toeristische verhuur. Deze woning heeft alles voor een (groot) gezin, kantoor/praktijk aan huis of de combinatie wonen èn verhuren. De woning ligt op een ideale locatie en heeft alle voorzieningen binnen handbereik. Gelegen op steenworp afstand van het centrum, het NS-stadion en het heerlijke strand. Winkels, scholen en andere noodzakelijke voorzieningen bevinden zich ook in de directe omgeving.
INDELING: Begane...
Kenmerken
Aanvaarding
- Status
- Beschikbaar
- Vraagprijs
- € 749.000 k.k.
- Aanvaarding
- In overleg
- Adres
- Burgemeester Engelbertsstraat 38
- Postcode
- 2042 KN
Bouw
- Hoofdtype
- Eengezinswoning
- Bouwtype
- Bestaand
- Onderhoud Binnen
- Goed
- Onderhoud Buiten
- Goed
Energie
- Energielabel
- E
- Isolatie
- Gedeeltelijk dubbel glas
- Verwarming
- Cv ketel
- Water
- Cv ketel
Indeling
- Kamers
- 7 kamers
- Slaapkamers
- 4 slaapkamers
- Badkamers
- 4 badkamers
- Verdiepingen
- 5 verdiepingen
- Voorzieningen
- Tv kabel, Dakraam, Natuurlijke ventilatie
Oppervlakte en inhoud
- Woonoppervlakte
- 177 m²
- Perceeloppervlakte
- 128 m²
- Inhoud
- 592 m³
Buitenruimte
- Tuintypes
- Achtertuin
- Hoofdtuin Type
- Achtertuin
- Oppervlakte Hoofdtuin
- 32 m² (600 cm x 530 cm)
- Oriëntatie Hoofdtuin
- Zuidoost
Schuur
- Schuurtjessystemen
- Vrijstaand steen
- Voorzieningen in Schuur
- Voorzien van elektra
- Aantal Schuren
- 1
Parkeerplaats
- Parkeertypes
- Betaald parkeren, Parkeervergunningen
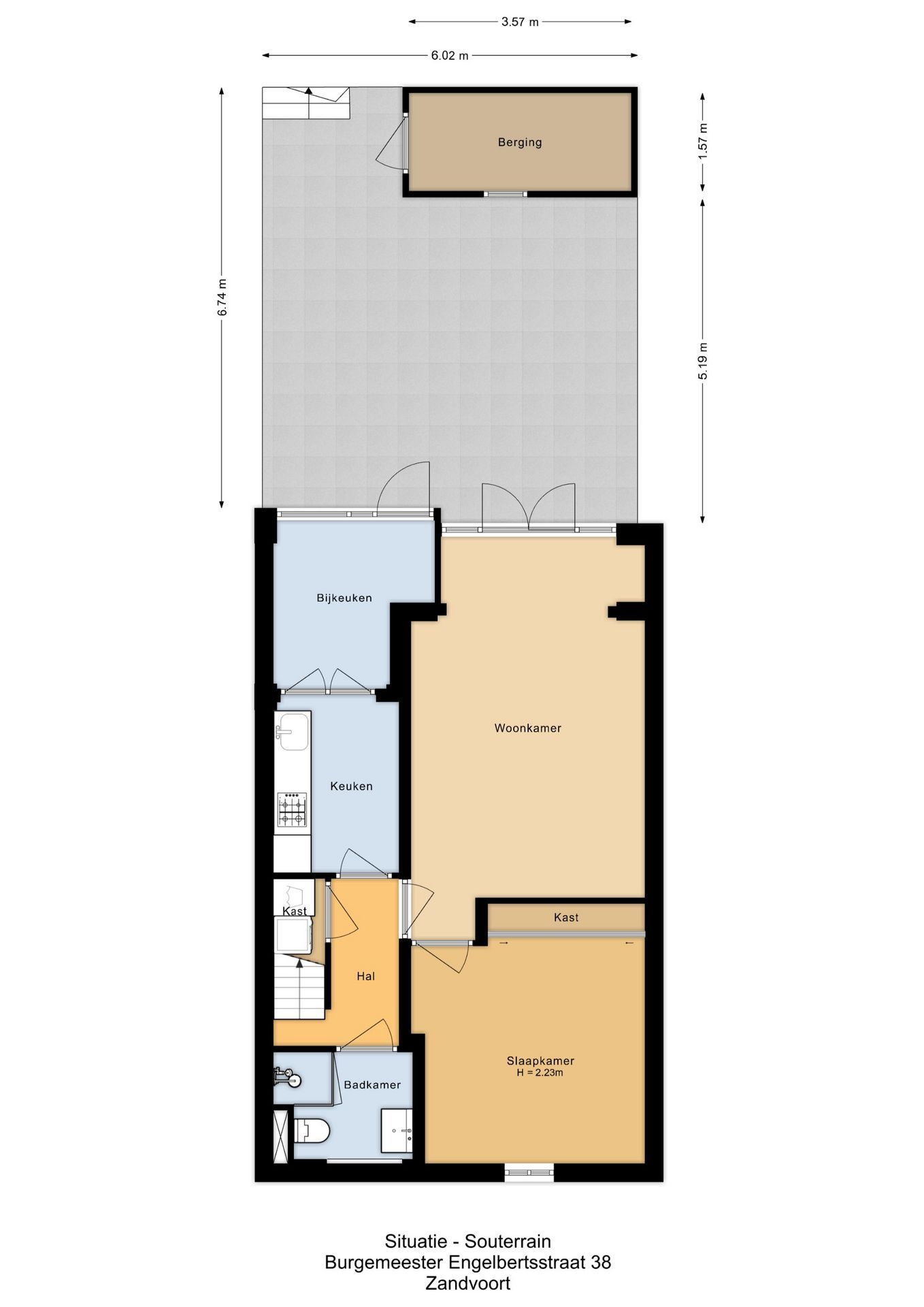
Plattegronden
Video
Geïnteresseerd in Burgemeester Engelbertsstraat 38?
Maak dan snel een afspraak voor een vrijblijvende bezichtiging

Locatie
Zandvoort
Burgemeester Engelbertsstraat 38



7 kamers
177 m²
128 m²
Eengezinswoning
€ 749.000 k.k.
Burgemeester Engelbertsstraat 38
bezichtigen?